





Pārdomāta, ērta un energoefektīva koka karkasa māja
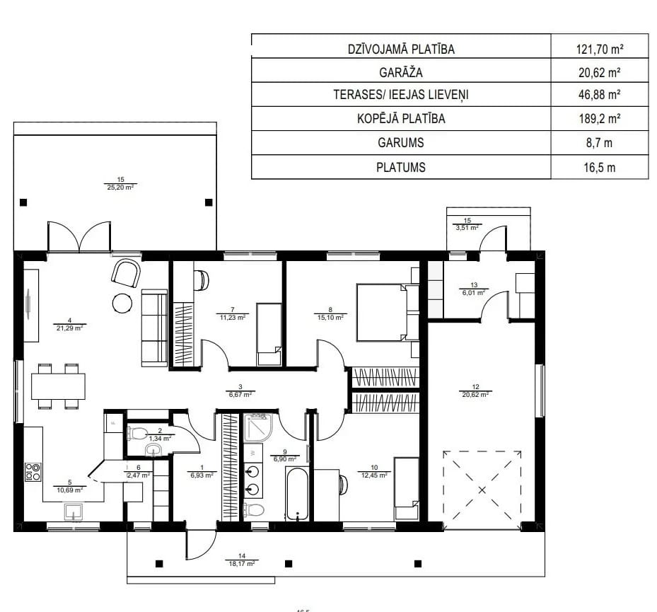
Koka karkasa privātmāja ir viena no ēkām, kas pēc savas būves un konstrukcijas piedāvā ātru un efektīvu būvniecības ātrumu, kā arī izcilu siltumizolāciju un skaņas izolāciju. Šī māja, ar dzīvojamo platību 121,70 m2, ir lielāka par dzīvokli, bet nedaudz mazāka par parasto privātmāju, tāpēc tā piedāvā labāko no abām pasaulēm – privātmājas privilēģijas un mazākas izmaksas.
Mājā ir ērti izvietots plānojums, kur apvienota viesistaba ar virtuvi, kā arī neliela terase, kas ļauj baudīt svaigu gaisu un dabu. Tā ir ideāla izvēle ikvienam, kurš vēlas dzīvot komfortabli un modernā mājoklī, bet arī gribētu ietaupīt uz izmaksām. Ar šo māju Jūs varēsiet baudīt vislabākās privātmājas privilēģijas, bet neuztraukties par lielām izmaksām.
| Apbūves laukums | 121 m² |
| Griestu augstums | 2.8m |
| Nesošās konstrukcijas | Siltināts koka karkass |
| Apkure | Siltumsūknis gaiss/ūdens |
| Ventilācija | Gaisa rekuperācijas sistēma |
| Mājas energoefektivitātes klase | A |
| Sienu / griestu apdare | Koka panelis krāsots / flīzēts |
| Pamati | betona plātne |
| Jumts | metāla jumta segums |
| Stiklojums | 4 stiklu pakete (Ug 0,36 W/m2K) |
Lai noskaidrotu kā mēs varam Jums palīdzēt tikt pie Jūsu sapņu mājas

Uzticama un izdevīga koka karkasa un bloku māju būvniecība, projektēšana un pamatu izbūve
Lai nodrošinātu vislabāko pieredzi, mēs izmantojam tādas tehnoloģijas kā sīkfaili, lai uzglabātu un/vai piekļūtu ierīces informācijai. Piekrišana šīm tehnoloģijām ļaus mums apstrādāt datus, piemēram, pārlūkošanas paradumus vai unikālus ID šajā vietnē. Piekrišanas nesniegšana vai piekrišanas atsaukšana var negatīvi ietekmēt noteiktas funkcijas un iespējas.